ÈκÎÒ»¸öÆó񵃾¼°·ÏÆøÅŷŵÄʱ¼ä£¬£¬£¬£¬£¬£¬£¬¶¼»áÓÐ·ÏÆøÅÅÆøÍ²¡£¡£¡£¡£¡£¡£»£»£»£»£»£»£»£»·±£ÖÎÀí²¿·Ö¼ì²éµÄʱ¼äÒ²¾³£Òª¶Ô·ÏÆøÅÅ·Å¿ÚÊÇ·ñ¹æ·¶¡¢ÊÇ·ñºÏ¹æ¾ÙÐмì²é¡£¡£¡£¡£¡£¡£»£»£»£»£»£»£»£»·±£´ÓÒµÕßÒ²¶¼ÖªµÀ·ÏÆøÅÅÆøÍ²Ò»¶¨ÓÐÏà¹ØÒªÇóºÍ¹æ·¶µÄ£¬£¬£¬£¬£¬£¬£¬Ò²»á½»½ÓÆóÒµ½¨ÉèµÄʱ¼äƾ֤Ïà¹Ø±ê×¼ºÍ¹æ·¶½¨É裬£¬£¬£¬£¬£¬£¬ÒÔÃâÑéÊÕ³öÎÊÌâ»òÕß»·±£¼ì²é³öÎÊÌ⣬£¬£¬£¬£¬£¬£¬µ«ÝëÈ»¼ä˵²»³öÏêϸµÄ±ê×¼ºÍ¹æ·¶ÊÇʲô¡£¡£¡£¡£¡£¡£²®ÒæËµ½ñÌì¾Í¶Ô·ÏÆøÅÅÆøÍ²µÄ¹æ·¶ºÍ±ê×¼¾ÙÐÐÒ»¸öÊáÀí»ã×Ü£¬£¬£¬£¬£¬£¬£¬Ï£Íû¶Ô¸÷ÈËÓÐËù×ÊÖú¡£¡£¡£¡£¡£¡£ÄÇô·ÏÆøÅÅÆøÍ²¾¿¾¹ÔõôÉèÖòźϹæÄØ£¿£¿£¿£¿£¿
1
ÅÅÆøÍ²¸ß¶È
ÅÅÆøÍ²¸ß¶ÈÒªÇóÔÚ¶à¸ö±ê×¼ºÍ¹æ·¶ÖÐÓÐÒªÇ󣬣¬£¬£¬£¬£¬£¬ÆóÒµ»·ÆÀʱ»·ÆÀÌåÀýµ¥Î»Ò»¶¨ÒѾ±ÈÕÕÏà¹Ø±ê×¼ºÍ¹æ·¶ÁË£¬£¬£¬£¬£¬£¬£¬ÒÔÊÇÅÅÆøÍ²¸ß¶ÈÒªÏëºÏ¹æ¾ÍÊÇÒªÇкϻ·ÆÀ±¨¸æ¼°»·ÆÀÅú¸´Öи߶ÈÒªÇ󣬣¬£¬£¬£¬£¬£¬¾ÍÊÇ˵»·ÆÀ±¨¸æ¼°Åú¸´ÖÐÒªÇóÉèÖõÄÅÅÆøÍ²¸ß¶ÈΪ15m£¬£¬£¬£¬£¬£¬£¬ÄÇô½¨É赥뽨ÉèÅÅÆøÍ²µÄʱ¼ä£¬£¬£¬£¬£¬£¬£¬Ò²Òª×ñÊØ»·ÆÀ±¨¸æ¼°»·ÆÀÅú¸´µÄÒªÇ󣬣¬£¬£¬£¬£¬£¬ÅÅÆøÍ²¸ß¶ÈÖÁÉÙΪ15m¡£¡£¡£¡£¡£¡£
ÕâÀïΪʲô˵¡°ÅÅÆøÍ²¸ß¶ÈÖÁÉÙΪ15m¡±£¬£¬£¬£¬£¬£¬£¬ÊÇÓÉÓÚ¡¶´óÆøÎÛȾÎï×ÛºÏÅŷűê×¼¡·£¨GB15297-1996£©µÈ¶à¸ö±ê×¼»®¶¨£ºÓÐ×éÖ¯ÅÅ·ÅÔ´µÄÅÅÆøÍ²¸ß¶È²»Ó¦µÍÓÚ15m¡£¡£¡£¡£¡£¡£´Ó±ê×¼ºÍ¹æ·¶½Ç¶ÈÆÊÎö£ºÅÅÆøÍ²¸ß¶È¿ÉÒÔ¸ßÓÚ»·ÆÀ±¨¸æ¼°Åú¸´ÒªÇ󣬣¬£¬£¬£¬£¬£¬²»¿ÉµÍÓڸ߶ÈÒªÇ󡣡£¡£¡£¡£¡£ÈôÊÇÒªÇóÅÅÆøÍ²¸ß¶ÈΪ15m£¬£¬£¬£¬£¬£¬£¬»·ÆÀÑéÊպͻ·±£¼ì²é·¢Ã÷ÉèÖÃÁË14mµÄ»°£¬£¬£¬£¬£¬£¬£¬Ò»¶¨ÒªÇóÕû¸ÄΪ15mÒÔÉÏ£¬£¬£¬£¬£¬£¬£¬ÈôÊÇÆóÒµËÀ»î²»ÏëÕû¸Ä£¬£¬£¬£¬£¬£¬£¬ÄÇôҪÏëÇкϻ·±£ÒªÇ󣬣¬£¬£¬£¬£¬£¬¾Í¿ÉÄÜÉæ¼°»·ÆÀ±ä»»»òÕßÖØÐ±¨Åú»·ÆÀ£¨ÔÚÒÑÐû²¼µÄ¶à¸öÐÐÒµÖØ´ó±ä»»Çåµ¥ÖУ¬£¬£¬£¬£¬£¬£¬ÅÅÆøÍ²¸ß¶ÈÅÅÆøÍ²¸ß¶È½µµÍ10%¼°ÒÔÉϾÍÊôÓÚÖØ´ó±ä»»ÁË£¬£¬£¬£¬£¬£¬£¬ÐèÒªÖØÐ±¨Åú»·ÆÀÁË£©£¬£¬£¬£¬£¬£¬£¬ÓÖÒª¾ÙÐл·ÆÀ±ä»»Ó°ÏìÆÊÎö»òÕßÖØÐ±¨Åú»·ÆÀ£¬£¬£¬£¬£¬£¬£¬×öÒ»¸ö»·ÆÀ±ä»»Ó°ÏìÆÊÎö»òÕßÖØÐ±¨Åú»·ÆÀÒ²ÊÇ»¨Ç®ÓÖ·Ñʱ£¬£¬£¬£¬£¬£¬£¬ÐÁ¿à²»Ìֺᣡ£¡£¡£¡£¡£×î¼òÆÓµÄÒªÁì¾ÍÊÇÆóÒµ½¨ÉèÅÅÆøÍ²µÄʱ¼ä×ñÊØ»·ÆÀ±¨¸æ¼°»·ÆÀÅú¸´Öи߶ÈÒªÇ󡣡£¡£¡£¡£¡£
2
ÅÅÆøÍ²²ÉÑù¿×¡¢²ÉÑùƽ̨
ÅÅÆøÍ²£¨ÑÌ´Ñ£©Ó¦ÉèÖñãÓÚ²ÉÑù¡¢¼à²âµÄ²ÉÑù¿ÚºÍ²ÉÑù¼à²âƽ̨¡£¡£¡£¡£¡£¡£Óо»»¯ÉèÊ©µÄ£¬£¬£¬£¬£¬£¬£¬Ó¦ÔÚÆäÊÕÖ§¿Ú»®·ÖÉèÖòÉÑù¿Ú¡£¡£¡£¡£¡£¡£
²ÉÑù¿×ºÍ²ÉÑùƽ̨ƾ֤¡¶Àο¿ÎÛȾԴÅÅÆøÖпÅÁ£Îï²â¶¨ÓëÆøÌ¬ÎÛȾÎï²ÉÑùÒªÁì¡·£¨ (GB/T 16157-1996)£©¡¢¡¶Àο¿Ô´·ÏÆø¼à²âÊÖÒչ淶¡·£¨HJ/T397-2007£©ºÍ¡¶Àο¿ÎÛȾԴÑÌÆøÅÅ·ÅÒ»Á¬¼à²âÊÖÒչ淶£¨ÊÔÐУ©¡·£¨HJ/T 75-2007£©ÉèÖ㬣¬£¬£¬£¬£¬£¬ÆäÖС¶Àο¿ÎÛȾԴÅÅÆøÖпÅÁ£Îï²â¶¨ÓëÆøÌ¬ÎÛȾÎï²ÉÑùÒªÁì¡·£¨ (GB/T 16157-1996)£©Ò²ÊÇ¡¶´óÆøÎÛȾÎï×ÛºÏÅŷűê×¼¡·£¨GB15297-1996£©µÄÒýÓñê×¼¡£¡£¡£¡£¡£¡£
¡¶Àο¿ÎÛȾԴÅÅÆøÖпÅÁ£Îï²â¶¨ÓëÆøÌ¬ÎÛȾÎï²ÉÑùÒªÁì¡·£¨ (GB/T 16157-1996)£©¡¢¡¶Àο¿Ô´·ÏÆø¼à²âÊÖÒչ淶¡·£¨HJ/T397-2007£©ºÍ¡¶Àο¿ÎÛȾԴÑÌÆøÅÅ·ÅÒ»Á¬¼à²âÊÖÒչ淶£¨ÊÔÐУ©¡·£¨HJ/T 75-2007£©ÖжԲÉÑù¿×ºÍ²ÉÑùƽ̨µÄÒªÇóÊÇ£º
²ÉÑù¿×
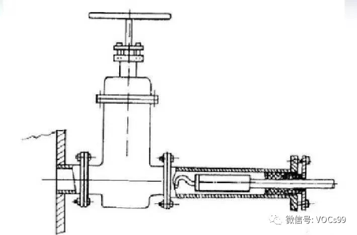
¢ÙÔÚÑ¡¶¨µÄ²â¶¨Î»ÖÃÉÏ¿ªÉè²ÉÑù¿×£¬£¬£¬£¬£¬£¬£¬²ÉÑù¿×µÄÄÚ¾¶Ó¦²»Ð¡ÓÚ80mm£¬£¬£¬£¬£¬£¬£¬²ÉÑù¿×¹Ü³¤Ó¦²»´óÓÚ50mm¡£¡£¡£¡£¡£¡£²»Ê¹ÓÃʱӦÓøǰ塢¹Ü¶Â»ò¹Üñ¹Ø±Õ£¨ÈçÏÂͼËùʾ£©¡£¡£¡£¡£¡£¡£µ±²ÉÑù¿×½öÓÃÓÚÊÕÂÞÆøÌ¬ÎÛȾÎïʱ£¬£¬£¬£¬£¬£¬£¬ÆäÄÚ¾¶Ó¦²»Ð¡ÓÚ40mm¡£¡£¡£¡£¡£¡£
¢Ú¶ÔÕýѹÏÂÔËË͸ßλòÓж¾ÆøÌåµÄÑ̵À£¬£¬£¬£¬£¬£¬£¬Ó¦Ê¹ÓôøÕ¢°å·§µÄÃÜ·â²ÉÑù¿×£¨ÈçÏÂͼËùʾ£©
¢Û¶ÔÔ²ÐÎÑ̵À£¬£¬£¬£¬£¬£¬£¬²ÉÑù¿×Ó¦ÉèÔÚ°üÀ¨¸÷²âµãÔÚÄÚµÄÏ໥±ÊÖ±µÄÖ±¾¶ÏßÉÏ£¨ÈçÏÂͼËùʾ£©¡£¡£¡£¡£¡£¡£¶Ô¾ØÐλò·½ÐÎÑ̵À£¬£¬£¬£¬£¬£¬£¬²ÉÑù¿×Ó¦ÉèÔÚ°üÀ¨¸÷²âµãÔÚÄÚµÄÑÓÉìÏßÉÏ£¨ÈçÏÂͼËùʾ£©¡£¡£¡£¡£¡£¡£
²ÉÑùƽ̨
½ÓÄÉÆ½Ì¨Îª¼ì²âÖ°Ô±²ÉÑùÉèÖ㬣¬£¬£¬£¬£¬£¬Ó¦ÓÐ×ã¹»µÄÊÂÈËÇé»ýʹ¼ì²âÖ°Ô±Çå¾²¡¢Àû±ãµØ²Ù×÷¡£¡£¡£¡£¡£¡£Æ½Ì¨Ãæ»ýÓ¦²»Ð¡ÓÚ1.5m?£¬£¬£¬£¬£¬£¬£¬²¢ÉèÓÐ1.1m¸ßµÄ»¤À¸£¬£¬£¬£¬£¬£¬£¬²ÉÑù¿×¾àÆ½Ì¨ÃæÔ¼Îª1.2~1.3m¡£¡£¡£¡£¡£¡£
²ÉÑùƽ̨ӦÉèÖÃÓÀÊÀÐÔÊÂÇéµçÔ´£¬£¬£¬£¬£¬£¬£¬Æ½Ì¨ÉÏ·½Ó¦ÉèÖ÷ÀÓêÅï¡£¡£¡£¡£¡£¡£²ÉÑùƽ̨Ӧ±Ü¿ª¶ÔÖ°Ô±ÓÐΣº¦µÄ³¡ºÏ£¬£¬£¬£¬£¬£¬£¬Ó¦Ò×ÓÚÖ°Ô±µÖ´ï£¬£¬£¬£¬£¬£¬£¬Ó¦½¨Éè¼à²âÇ徲ͨµÀ¡£¡£¡£¡£¡£¡£µ±²ÉÑùƽ̨ÉèÖøßÓÚµØÃæÊ±£¬£¬£¬£¬£¬£¬£¬Ó¦ÓÐͨÍùƽ̨µÄZ×ÖÌÝ/ÐýÌÝ/Éý½µÌÝ£¬£¬£¬£¬£¬£¬£¬ÇÐÎðÉèÖÃÖíÁýÌݵȲ»Ç徲ͨµÀ¡£¡£¡£¡£¡£¡£
3
·ÏÆøÅÅÆøÍ²±ê¼ÇÅÆ
·ÏÆøÅÅÆøÍ²Ó¦Æ¾Ö¤¹ú¼Ò»·±£×ܾÖÖÆ¶©µÄ¡¶Ó¡·¢Åŷſڱê¼ÇÅÆÊÖÒÕ¹æ¸ñµÄ֪ͨ¡·£¨»·°ì[2003]95ºÅ£©Ïà¹Ø»®¶¨£¬£¬£¬£¬£¬£¬£¬ÉèÖÃÓëÅÅÎÛ¿ÚÏìÓ¦µÄÇéÐα£»£»£»£»£»£»£»£»¤Í¼Ðαê¼ÇÅÆ¡£¡£¡£¡£¡£¡£»£»£»£»£»£»£»£ÇéÐα£»£»£»£»£»£»£»£»¤Í¼Ðαê¼ÇÅÆÉèÖõľàÀëÎÛȾÎïÅÅ·Å¿Ú(Ô´)½Ï½üÇÒÐÑÄ¿´¦£¬£¬£¬£¬£¬£¬£¬²¢Äܺã¾Ã±£´æ¡£¡£¡£¡£¡£¡£ÒªÇóÉèÖø߶ÈΪÇéÐα£»£»£»£»£»£»£»£»¤Í¼Ðαê¼ÇÅÆÉÏÔµ¾àÀëµØÃæ2Ãס£¡£¡£¡£¡£¡£
¡¶Ó¡·¢Åŷſڱê¼ÇÅÆÊÖÒÕ¹æ¸ñµÄ֪ͨ¡·£¨»·°ì[2003]95ºÅ£©»®¶¨£º
01»·±£Í¼Ðαê¼Ç
±ØÐèÇкÏÔ¹ú¼ÒÇéÐα£»£»£»£»£»£»£»£»¤¾ÖºÍ¹ú¼ÒÊÖÒÕ¼àÊÓ¾ÖÐû²¼µÄÖлªÈËÃñ¹²ºÍ¹ú¹ú¼Ò±ê×¼GB15562.1-1995¡¶ÇéÐα£»£»£»£»£»£»£»£»¤Í¼Ðαê¼Ç¡·ÅÅ·Å¿Ú(Ô´)ºÍGB15562.2-1995¡¶ÇéÐα£»£»£»£»£»£»£»£»¤Í¼Ðαê¼Ç¡·¹ÌÌå·ÏÎïÖü´æ(´¦Öóͷ£)³¡µÄÒªÇ󡣡£¡£¡£¡£¡£
02ͼÐÎÑÕÉ«¼°×°ÖÃÑÕÉ«
(1)ÌáÐѱê¼Ç£ºµ×ºÍÁ¢ÖùΪÂÌÉ«£¬£¬£¬£¬£¬£¬£¬Í¼°¸¡¢±ß¿ò¡¢Ö§¼ÜºÍÎÄ×ÖΪ°×É«;
(2)ÖÒÑÔ±ê¼Ç£ºµ×ºÍÁ¢ÖùΪ»ÆÉ«£¬£¬£¬£¬£¬£¬£¬Í¼°¸¡¢±ß¿ò¡¢Ö§¼ÜºÍÎÄ×ÖΪÐþÉ«¡£¡£¡£¡£¡£¡£
03¸¨Öú±ê¼ÇÄÚÈÝ
(1)Åŷſڱê¼ÇÃû³Æ;
(2)µ¥Î»Ãû³Æ;
(3)񅧏;
(4)ÎÛȾÎïÖÖÀà;
(5)¡Á¡ÁÇéÐα£»£»£»£»£»£»£»£»¤¾Ö¼àÖÆ¡£¡£¡£¡£¡£¡£
04¸¨Öú±ê¼Ç×ÖÐÍ
ºÚÌå×Ö¡£¡£¡£¡£¡£¡£
05±ê¼ÇÅÆ³ß´ç
(1)Æ½ÃæÀο¿Ê½±ê¼ÇÅÆÐÎ×´³ß´ç
¢ÙÌáÐѱê¼Ç£º480¡Á300mm
¢ÚÖÒÑÔ±ê¼Ç£º±ß³¤420mm
(2)Á¢Ê½Àο¿Ê½±ê¼ÇÅÆÐÎ×´³ß´ç
¢ÙÌáÐѱê¼Ç£º420¡Á420mm
¢ÚÖÒÑÔ±ê¼Ç£º±ß³¤560mm
¢Û¸ß¶È£º±ê¼ÇÅÆ×îÉÏ¶Ë¾àµØÃæ2mµØÏÂ0.3m
¶þ¡¢±ê¼ÇÅÆÖÊÁÏ
1.±ê¼ÇÅÆ½ÓÄÉ1.5-2mmÀäÔþ¸Ö°å;
2.Á¢Öù½ÓÄÉ38¡Á4ÎÞ·ì¸Ö¹Ü;
3.Íâò½ÓÄÉÌ´ɻòÕß·´¹âÌùĤ¡£¡£¡£¡£¡£¡£
Èý¡¢±ê¼ÇÅÆµÄÍâò´¦Öóͷ£
1.Ì´ɴ¦Öóͷ£»òÌùĤ´¦Öóͷ£;
2.±ê¼ÇÅÆµÄ¶ËÃæ¼°Á¢ÖùÒª¾ÓÉ·À¸¯´¦Öóͷ£¡£¡£¡£¡£¡£¡£
ËÄ¡¢±ê¼ÇÅÆµÄÍâ¹ÛÖÊÁ¿ÒªÇó
1.±ê¼ÇÅÆ¡¢Á¢ÖùÎÞÏÔ×űäÐÎ;
2.±ê¼ÇÅÆÍâòÎÞÆøÅÝ£¬£¬£¬£¬£¬£¬£¬Ä¤»òÌ´ÉÎÞÍÑÂä;
3.ͼ°¸ÇåÎú£¬£¬£¬£¬£¬£¬£¬É«ÔóÒ»Ö£¬£¬£¬£¬£¬£¬£¬²»µÃÓÐÏÔ×ÅȱËð;
4.±ê¼ÇÅÆµÄÍâò²»Ó¦ÓпªÁÑ¡¢ÍÑÂä¼°ÆäËüÆÆË𡣡£¡£¡£¡£¡£
±¸×¢£ºÅŷſڱàºÅ¡¢ÎÛȾÎïÆ¾Ö¤»·ÆÀ¡¢ÅÅÎÛÉêÇëÔÊÐíÖ¤Ìîд
4
ÅÅÆøÍ²Ó¦°´ÆÚÄ¥Á·
²»µÃÓÐÆÆËð¡¢Â©·ç´¦£¬£¬£¬£¬£¬£¬£¬²»µÃ±£´æÇå¾²Òþ»¼¡£¡£¡£¡£¡£¡£
5
ÅÅÆøÍ²ÎÛȾÎïÅÅ·Å
Ó¦Öª×ã»·ÆÀ±¨¸æ¼°»·ÆÀÅú¸´ÒªÇóµÄÎÛȾÎïÅÅ·ÅËÙÂʺÍÅÅ·ÅŨ¶ÈÒªÇ󣬣¬£¬£¬£¬£¬£¬²¢Öª×ãÏîÄ¿×ÜÁ¿¿ØÖÆÒªÇ󡣡£¡£¡£¡£¡£
6
ÅÅÆøÍ²µÄÒ»Ñùƽ³£ÉèÍýÏ붨
1Ñ̴ѽṹÉè¼ÆÓ¦Çкϡ¶ÑÌ´ÑÉè¼Æ¹æ·¶¡·(GB 50051¨D¨D2002)ºÍ¡¶¸Ö½á¹¹Éè¼Æ¹æ·¶¡·(GB 50017¨D¨D2003)µÄÒªÇ󡣡£¡£¡£¡£¡£
2.Éè¼ÆÑÌ´Ñʱ£¬£¬£¬£¬£¬£¬£¬Ó¦Æ¾Ö¤Ê¹ÓÃÌõ¼þ¡¢¹¦Ð§ÒªÇó¡¢Ñ̴Ѹ߶ȡ¢ÖÊÁϹ©Ó¦¼°Ê©¹¤Ìõ¼þµÈÒòËØ£¬£¬£¬£¬£¬£¬£¬È·¶¨½ÓÄÉשÑÌ´Ñ¡¢¸Ö½î»ìÄýÍÁÑÌ´Ñ»ò¸ÖÑÌ´Ñ¡£¡£¡£¡£¡£¡£
3.ÏÂÁÐÇéÐβ»Ò˽ÓÄÉשÑÌ´Ñ£º¢ÙÖ÷ÒªµÄ»ò¸ß¶È´óÓÚ60 mµÄÑÌ´Ñ;¢ÚµØ¶¯Éè·ÀÁѶÈΪ9¶ÈµØÇøµÄÑÌ´Ñ;¢ÛµØ¶¯Éè·ÀÁѶÈΪ8¶Èʱ£¬£¬£¬£¬£¬£¬£¬Ill¡¢IVÀàÔ°µØµÄÑÌ´Ñ¡£¡£¡£¡£¡£¡£
4.ÑÌ´Ñ»ù´¡Ò»Ñùƽ³£Ò˽ÓÄɰåʽ»ù´¡¡£¡£¡£¡£¡£¡£°åʽ»ù´¡¿ÉÒÔÊÇ»·ÐλòÔ²Ðεġ£¡£¡£¡£¡£¡£ÔÚÌõ¼þÔÊÐíʱ£¬£¬£¬£¬£¬£¬£¬¿É½ÓÄÉ¿Çʽ»ù´¡¡£¡£¡£¡£¡£¡£
5.ÑÌ´ÑͲ±ÚºÍ»ù´¡µÄÊÜÈÈζÈÓ¦ÇкÏÏÂÁл®¶¨£º
¢ÙÉÕ½áͨË×ð¤ÍÁשͲ±ÚµÄ×î¸ßÊÜÈÈζȲ»Ó¦Áè¼Ý400¡æ;
¢Ú¸Ö½î»ìÄýÍÁͲ±ÚºÍ»ù´¡ÒÔ¼°ËØ»ìÄýÍÁ»ù´¡£¡£¡£¡£¡£¡£¬£¬£¬£¬£¬£¬£¬ÊÜÈÈζȲ»Ó¦Áè¼Ý150¡æ;
¢Û¸ÖÑÌ´ÑͲ±ÚµÄ×î¸ßÊÜÈÈζÈÓ¦ÇкÏÏà¹Ø»®¶¨¡£¡£¡£¡£¡£¡£
6.Ñ̴ѵĺÉÔØÓë×÷ÓÿɷÖΪÏÂÁÐÈýÀࣺ
¢ÙÓÀÊÀÐÔºÉÔØÓë×÷Ó㺽ṹ×ÔÖØ¡¢ÍÁÖØ¡¢ÍÁѹÁ¦¡¢ÀÏßµÄÀÁ¦;
¢Ú¿É±äºÉÔØÓë×÷ÓÃ
¢ÛÎÞÒâºÉÔØ£ºº±ÓöµØ¾Ù´ëÓá¢ÀÏß¶ÏÏß¡¢×²»÷¡¢±¬Õ¨µÈ¡£¡£¡£¡£¡£¡£
ȪԴ£ºVOCsÇ°ÑØ¡¢ÇéÐμà²âʵս